로드 슬라이더 ARSZ 시리즈 (가이드 부착 압소바 장치 탑재형) > 로드 슬라이더 ARSZ 시리즈 (가이드 부착 압소바 장치 탑재형)

본문 바로가기

쇼핑몰 검색

검색

HOME    >   제품정보   >   에어실린더·핸드   >   가이드 부착형   >   로드슬라이더   >   로드 슬라이더 ARSZ 시리즈 (가이드 부착 압소바 장치 탑재형)

로드 슬라이더 ARSZ 시리즈 (가이드 부착 압소바 장치 탑재형)

로드 슬라이더 ARSZ 시리즈 (가이드 부착 압소바 장치 탑재형) 요약정보 및 구매

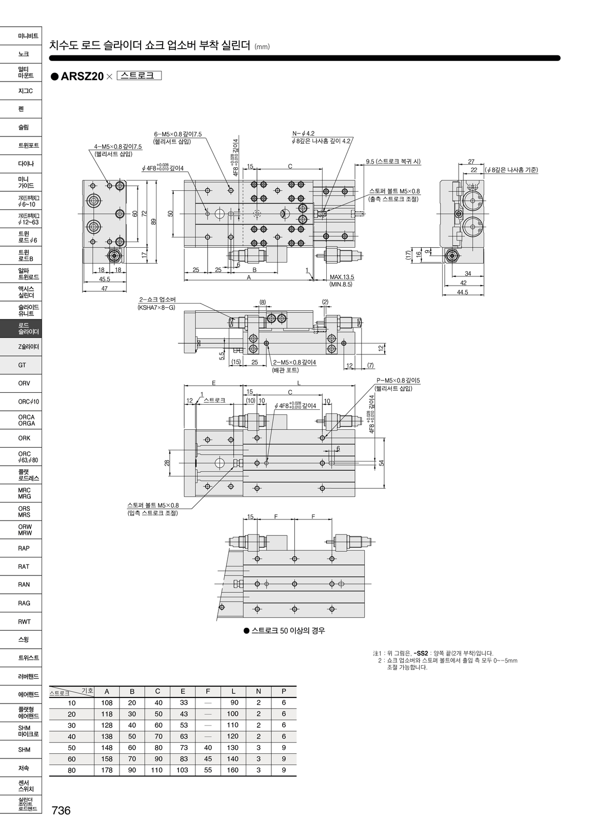
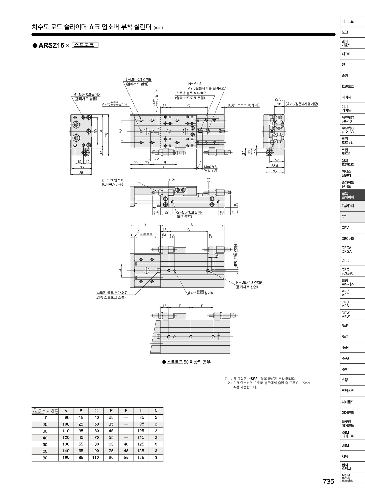
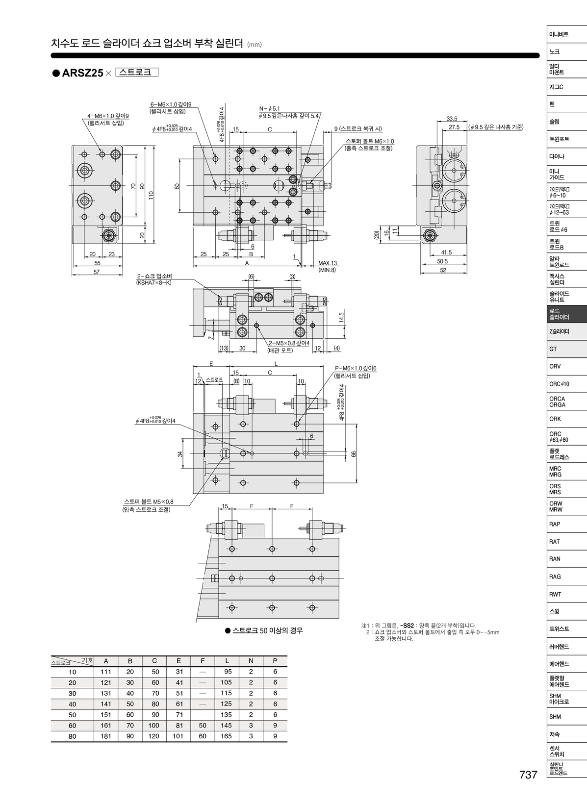
● 실린더 직경 Ø10 ~ Ø25 스트로크 종단에 흡수 장치를 탑재하여 종단의 충격 완화와 스트로크 조정이 가능하게 되었습니다.

판매가격 0원
배송비결제 주문시 결제

상품의 재고가 부족하여 구매할 수 없습니다.

Copyright 2017 KOGANEI CORPORATION All rights reserved.